Direkt zum Seiteninhalt

Solothurner Spitäler AG - Marcel Baechler - Innenarchitektur, Architektur & Praxisplanung

Solothurner Spitäler AG - Praxis für Urologie und Vizeralchirurgie, Grenchen

Auftraggeber: Solothurner Spitäler AG
Realisierung: 2023
Auftragsart: Direktauftrag

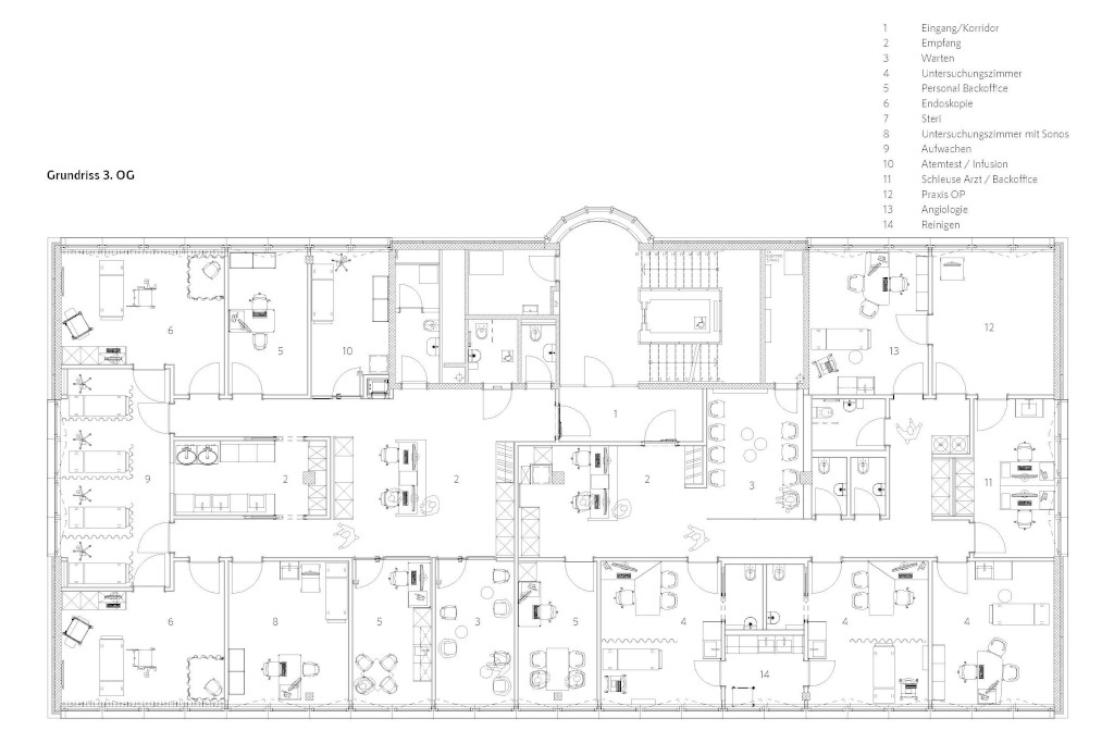
Standort: im Ärztezentrum Grenchen, 3. OG

Innenarchitektur: Marcel Baechler, Innenarchitekt vsi.asai.
Mitarbeit: Noëlle Baechler, Martina Hofer
Bauleitung: Marcel Baechler, Innenarchitekt vsi.asai.

Wir erhielten den Auftrag im 3. Obergeschoss des neuen Ärztezentrum Grenchen für die Solothurner Spitäler AG eine Praxis für Urologie und Viszeralchirurgie zu planen.

Bei der Planung einer Praxis in der Urologie und Viszeralchirurgie ist es wichtig, eine angenehme und funktionale Umgebung zu schaffen. In den Wartebereichen im Zentrum der Praxis stehen bequeme Wilkhahn-Sessel, auf denen die  Patienten Platz nehmen können. Es gibt auch Regal, auf denen  Zeitschriften oder Bücher liegen, um die Wartezeit angenehm zu  gestalten. Die Beleuchtung ist mit 4000K optimal gelöst um eine entspannte  Stimmung zu erzeugen. Zwischen den Behandlungszimmern der Urologie wurden direkt zusätzliche kleine Toiletten eingebaut was für und Innenarchitekten eine zusätzliche Herausforderung für die Leitungsführung bedeutete. Mit hervorragenden Unternehmer vor Ort ist uns das unmögliche Gelungen.

In diesem Projekt waren wir für die gesamte Entwurfs-, Ausführungs-, Sanitär- und Elektroplanung mit Bauleitung verantwortlich.
An dieser Stelle einen grossen Dank an alle Unternehmer die uns Innenarchitekten immer in unseren Ideen unterstützt haben.
Visualisierung | Realitätsfoto (Schieber nach Links und Rechts bewegen)
Line
Zurück zum Seiteninhalt