Direkt zum Seiteninhalt

Ärztezentrum für allgemein- und innere Medizin - Marcel Baechler - Innenarchitektur, Architektur & Praxisplanung


Ärztezentrum Biberist AG | Biberist

Auftraggeberin: Ärztezentrum Biberist AG, Biberist
Kontakt: Andreas Scheurer, Aadax AG, Solothurn
Realisierung: 2021
Auftragsart: Direktauftrag

Praxisplanung Mithilfe: Marcel Baechler, Innenarchitekt vsi.asai.

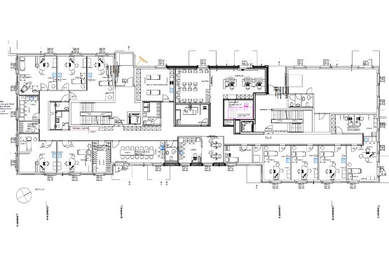
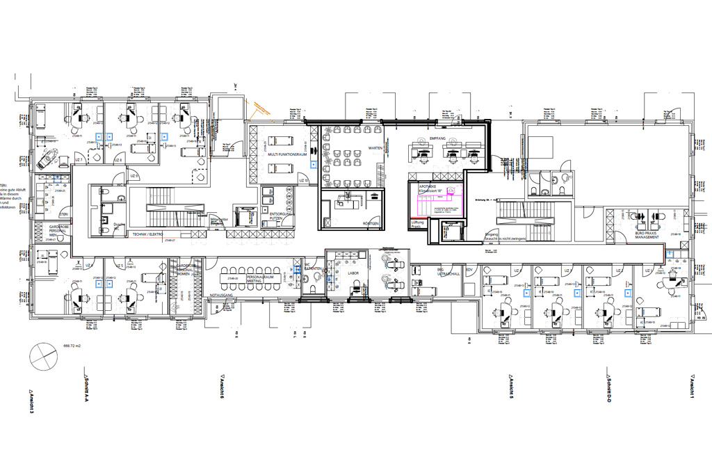
Für die das Ärztezentrum Biberist durften wir im Auftrag von Adax AG das Layout für das Neubauprojekt realisieren und haben die Praxis im Grundriss der Architekten/GU geplant und auf ihren Arbeitsprozess überprüft. Des Weiteren haben wir die Gestaltung des Empfangs- und Wartebereiches übernommen.

Line
Ärztezentrum Biberist Empfang
Ärztezentrum Biberist Labor
Ärztezentrum Biberist Blutentnahme mit dem Behandlungswagen der Häubi AG
Ärztezentrum Biberist Warten
Line
Zurück zum Seiteninhalt